
Chris Hall Design
Museum Exhibitions – 3D Design Development – Prototyping & Production
Museum Exhibitions
A broad range of exhibition projects including single showcases, touring exhibitions, interactive science exhibits, and large permanent exhibitions.
Click on any image below for more information and a closer look

















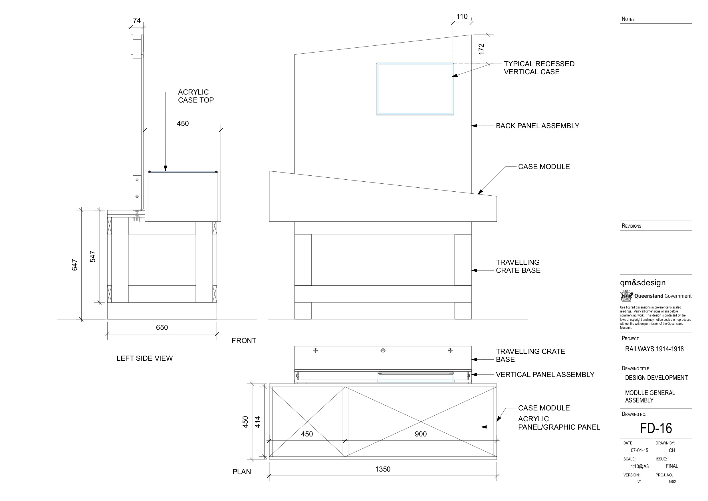
3D Design Development
Detailed design development of exhibition layouts, custom showcases, object supports, seating and other exhibition components.
Click on any image below for more information and a closer look


















Prototyping and Production
Prototyping and evaluation of exhibition components. Final design specifications followed by overseeing production and onsite installation.
Click on any image below for more information and a closer look








All images reproduced with permission – QMN and QM Publications and Photography